от 160 дней
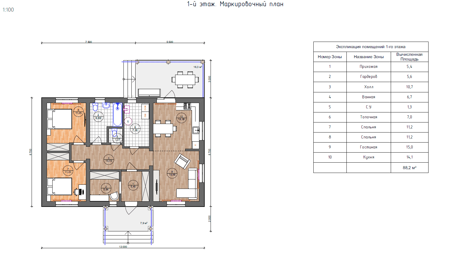
88.2м2
1 этаж
2 спальни
Материал
Камень
Цена строительства + материалы
от 3.4млн. ₽
Комплектация
| Раздел | Описание |
|---|---|
| Фундамент | Утепленная монолитная ж/б плита с ребрами жесткости вниз (бетон класса В25, толщина 200 мм, арм. ø12мм, шаг 200 мм; ребра от 300х400 мм арм. ø12мм; песчаная подушка 300 мм, укладка геотекстиля под пятном застройки) |
| Рулонная (наплавляемая) гидроизоляция Стеклоизол ТПП Технониколь (в 2 слоя) | |
| Утепление толщиной 50 мм сплошное под всей конструкцией фундамента | |
| Точки канализации на 1-ом этаже строения (прокладка под пятном застройки и отвод на 2 метра за границу фундамента) | |
| Ввод воды в бойлерную (прокладка ПНД трубы и отвод на 2 метра). Монтаж закладной под ввод электрокабеля | |
| Монтаж фанового стояка | |
| Стены | Внешние несущие стены: газобетонный блок D500 толщиной 400 мм (ж/б оконные перемычки с U-блоком; монолитный ж/б пояс с утеплением и доборной кладкой) |
| Внутренние несущие стены: газобетонный блок D500 толщиной 300 мм (ж/б дверные перемычки с U-блоком; монолитный ж/б пояс) | |
| Перегородки из газобетонных блоков D500 толщиной 100 мм | |
| Перекрытие | Перекрытие усиленное балочное деревянное (несущие балки 200х50, 200х100, по расчету). Обработка древесины огнебиозащитным составом Утепление 200 мм плитами из минеральной ваты ROCKWOOL и монтаж защитных мембран JUTA Ютавек, Ютафол |
| Кровля | Усиленная стропильная система (несущие стропила 150х50, 200х50 мм по расчету, ригели 150х50 мм, контробрешетка 50х50 мм, обрешетка 100х25 мм, мембрана JUTA Ютавек). Обработка древесины огнебиозащитным составом |
| Устройство покрытия крыши из металлочерепицы (покрытие: полиэстер, полный комплект по проекту) | |
| Индивидуальная отделка "как на картинке" | |
| Обшивка свесов кровли (включая потолок балконов, террас, крылец) виниловыми софитами или имитацией бруса с тонированием (по проекту) | |
| Устройство водосточной системы (из пластика) по периметру кровли дома для огранизованного сбора дождевой воды с крыши | |
| Окна и балконные двери пластиковые, профиль REHAU с двухкамерным энергоэффективным стеклопакетом (3 стекла) Входные монолитные ж/б лестницы (крыльца, по проекту) |
Гарантия от 10 лет на материалы и работы
Все транспортные и погрузочные работы
Независимый технадзор
Работа с опытным архитектором, возможность полностью адаптировать проект под Вас бесплатно
Персональный менеджер по сопровождению стройки
Регулярный фотоотчет по строительству

